Viviendas en Acevedo 663
Acevedo 663 es un conjunto de viviendas de 10 unidades y cocheras ubicado en un lote en el barrio de Villa Crespo de la Ciudad de Buenos Aires.
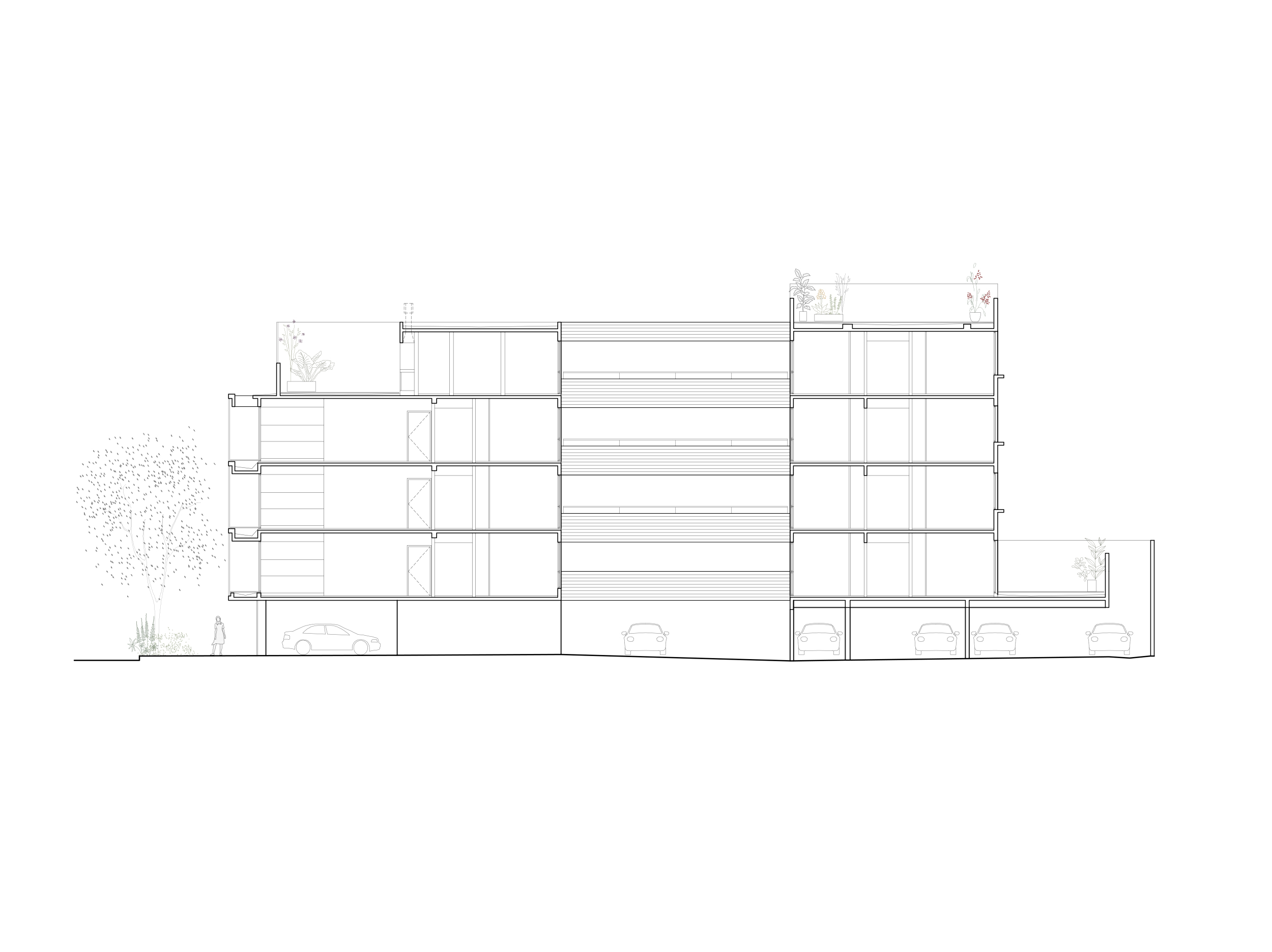
El edificio se desarrolla en planta baja y 4 pisos. A nivel peatonal se ubica el hall de acceso a las unidades y el espacio de cocheras.
Cada nivel se organiza en dos volúmenes. Al frente con una vivienda de dos ambientes y una de un ambiente y al contrafrente se ubica una de tres ambientes. El tres ambientes del primer piso posee un gran patio a nivel, mientras que el del 4to piso incorpora el acceso privado a la terraza.
Los dos volúmenes están unidos por puentes que cubren 10m de luz sin apoyos generando palieres abiertos semicubiertos de acceso a las unidades. Este patio da iluminación y ventilación a los departamentos y espacios comunes.
La fachada se resolvió con una malla permeable compuesta por planchuelas verticales que generan desde el exterior la sensación de movimiento a medida que se acerca o aleja del edificio. Hacia el interior, da distintas permeabilidades, manteniendo la privacidad de los departamentos y dando transparencias hacia la calle. Resulta dinámica ya que va cambiando según el punto de vista, y funciona como un filtro y control solar hacia el noroeste.
Equipo: Micaela Adlerstein
Ubicación: Acevedo 663, CABA, Argentina
Año: 2018
Superficie: 1000m2
Asesores
Ing. Sebastian Berdichevsky (calculista)
Fotografias
Albano García











