Viviendas en Jose María Moreno 477
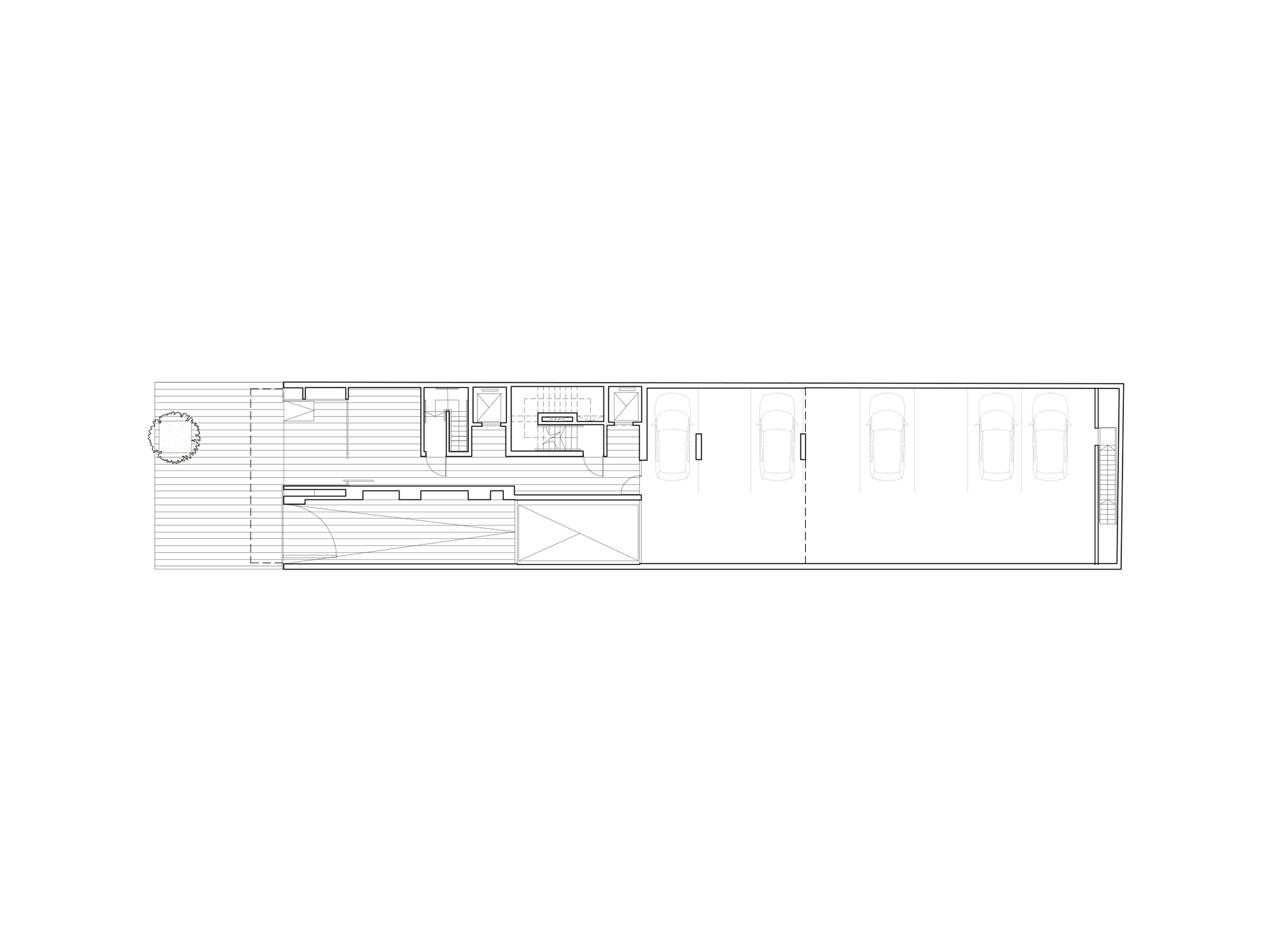
Ubicado en el barrio de Caballito, en un sector de alta densidad de la Ciudad de Buenos Aires, se propone un edificio de vivienda multifamiliar sobre un lote de 8,66 x 40m.
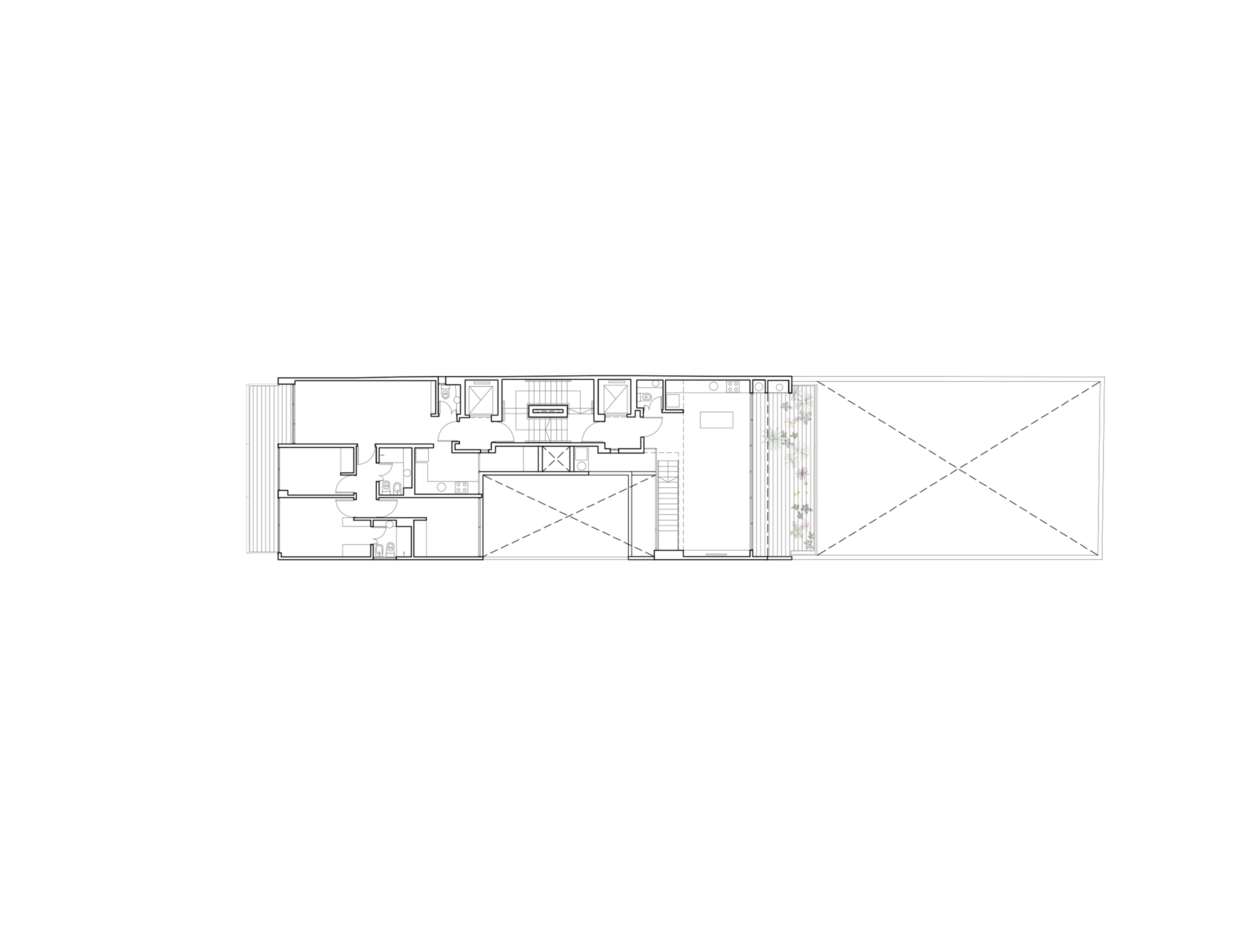
Sobre sus dos frentes, se disponen expansiones de tamaño considerable aprovechando los vacíos existentes del tejido: en el frente, el vacío generado por el patio de una escuela, y en el contrafrente el vacío producto del centro libre de la manzana. Las expansiones toman el ancho del lote y su superficie es mayor en relación a los programas públicos de la vivienda.
Orientadas este-oeste, las fachadas incorporan un sistema de toldos verticales de tela microperforada otorgando diferentes ambientes y privacidad a las expansiones, satisfaciendo la propuesta energética del conjunto y disminuyendo gastos de mantenimiento.
El edificio se desarrolla en 12 niveles con unidades de frente y contrafrente, y en el remate se resuelven en dúplex con expansiones descubiertas de amplias dimensiones y una íntima relación interior-exterior.
Las viviendas se articulan a través del núcleo circulatorio y de un vacío que habilita su iluminación y ventilación. El bloque de viviendas del frente se dispone a medio nivel respecto de las unidades del contrafrente. De tal modo se consigue mayor privacidad entre las mismas.
La estructura de hormigón visto resuelve los espacios comunes de planta baja y expansiones de todo el edificio como postura silenciosa y austera en relación al barrio y a la ciudad.
En sociedad con: Aníbal Bizzotto
Ubicación: José María Moreno 477, CABA, Argentina
Año: 2021
Superficie: 2950 m2
Asesores
Ing. Sebastian Berdichevsky
Fotografias:
Albano García















