Viviendas en Quesada 3155
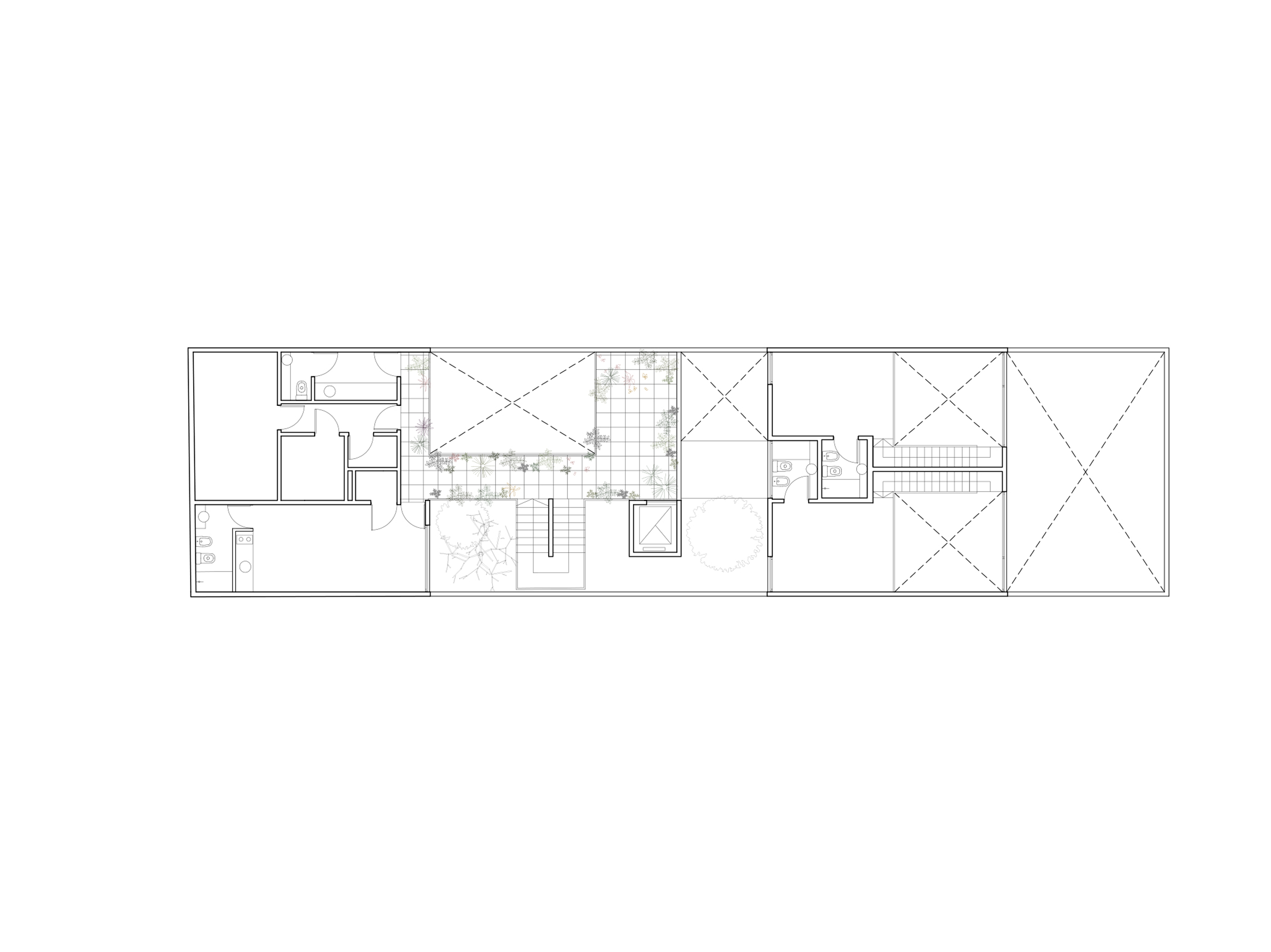
Sobre un lote profundo de mitad de cuadra y ancho típico de 8.66 metros, se distribuye lo construido en dos bloques en relación a un patio ajardinado de dimensiones máximas y confiriere a todas sus unidades los beneficios del doble frente de iluminación y de la ventilación cruzada.
En el patio, entre árboles y variada vegetación, se disponen como elementos sueltos, la escalera, las pasarelas abiertas, la pieza del ascensor y una losa que en el primer piso arma un sector de uso común.
En la planta baja, dos viviendas en dúplex se apropian de los fondos, mientras un local se ubica hacia la calle y unos pocos autos se estacionan sobre la medianera izquierda.
Las plantas del 2° y 3° piso de unidades divisibles concentran accesos a las unidades, cocinas, baños y balcones en la franja central de cada bloque, sobre una losa baja que resuelve el desarrollo de los recorridos horizontales de la instalación sanitaria, y a la vez define una escala espacial menor en dichos lugares, despejando las áreas de estar y dormir como ámbitos limpios y unitarios.
En el simple pliegue de su losa arma las vigas de una estructura de luces sencillas.
Las unidades del 4to piso expanden en terrazas propias ubicadas sobre sus cubiertas.
La estructura de frente y contra frente se resuelve con vigas invertidas que, como antepechos ciegos salvan la luz de medianera a medianera.
Las vigas de hormigón visto confinan carpinterías de aluminio y muros revestidos de perfiles extruido “peine” blancos como paños enteros.
El hormigón se muestra texturado, encofrado con tablas de madera vertical al frente y pulmón de la manzana; y liso al interior del patio con placas fenólicas melamínicas.
Una volumetría mayormente maciza al exterior, de vanos controlados y superficies vidriadas medidas, que evita las perdidas energéticas y la sobreexposición solar.
En sociedad con: Gustavo Robinsohn
Ubicación: Quesada 3155, CABA, Argentina
Año: 2021
Superficie: 750 m2
Asesores
Ing. Claudio De Caroli
Fotografias:
Albano García
Fernando Schapochnik